LUIZ CLAUDIO CONSTRUÇÕES

SUA OPORTUNIDADE ÚNICA DE COMPRAR SEU APARTAMENTO EM COXIM É AQUI

SEU NOVO CAPÍTULO COMEÇA AQUI COM:

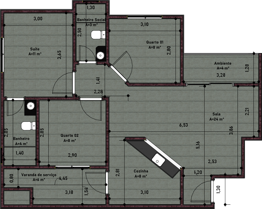
3 QUARTOS

ÁREA 73,85 M²


COM 1 SUÍTE

BANHEIRO SOCIAL

MAIOR ÁREA DE SACADA

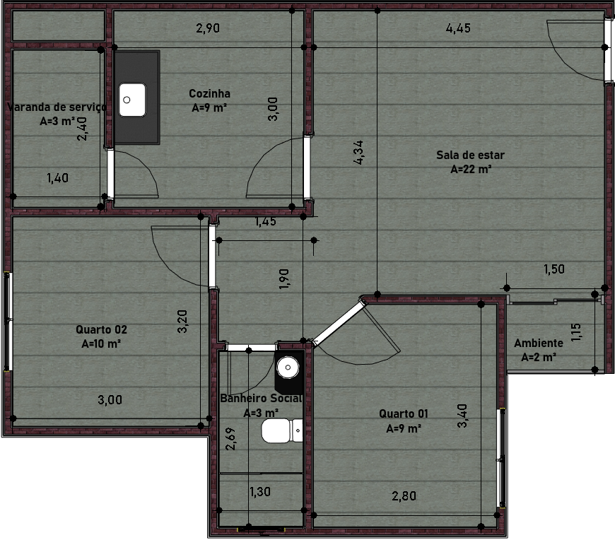
2 QUARTOS

ÁREA 60,35 M²


EXCELENTE CUSTO BENEFÍCIO

BANHEIRO SOCIAL

OPORTUNIDADE ÚNICA EM COXIM! VEJA OS DIFERENCIAIS

ÚNICO CONDOMÍNIO EM CONSTRUÇÃO

VALORIZAÇÃO QUE SÓ O ÚNICO PRÉDIO EM CONSTRUÇÃO PODE TE OFERECER

SEGURANÇA QUE APENAS UM CONDOMÍNIO PODE TE OFERECER

CHURRASQUEIRA EM TODOS OS APARTAMENTOS

VAGA DE GARAGEM TOTALMENTE COBERTA

ACABAMENTO PRIMOROSO EM TODOS OS APARTAMENTOS

ELEVADOR

QUALIDADE GARANTIDA

LOCALIZAÇÃO DO SEU INVESTIMENTO:

Viva no Coração de Coxim: Onde a Exclusividade Encontra a Conveniência!

A maior de Coxim

A Luiz Cláudio Construções carrega um legado de décadas na construção civil. Tudo começou em 4 de novembro de 1984, com a Luclaper, uma loja de materiais de construção que serviu a comunidade até 2013.

Com a experiência da Luclaper, em 2006 fundamos a Luiz Cláudio Construções. Desde então, somos líderes em Coxim, com 87 casas e 28 apartamentos, ao todo 115  imóveis construídos. Somos a construtora que mais entregou imóveis na cidade, construindo não só imóveis, mas também confiança e sonhos.

Invista no seu bem-estar, invista no seu futuro.